
產品詳情
當前位置:首頁 > 產品中心 > 氣動球閥 > 氣動法蘭球閥 > Q641f氣動球閥 Q641F氣動法蘭球閥Q641f氣動球閥 Q641F氣動法蘭球閥
Q641F氣動球閥簡介:
Q641F氣動球閥在管路中使用較為廣泛,常用于管道和設備中對流體介質的切斷和調節,具有改變介質流動方向和調節流量的作用。上海川耐專業生產的Q641F氣動球閥采用高壓鍛制的AT、GT型氣動執行器,具有規格齊全的雙作用結構和單作用結構,采用高精度齒輪齒條傳動,安全可靠;大口徑閥門采用AW液壓型氣動執行器,結構合理,輸出扭矩大。Q641F氣動球閥廣泛應用于石油、化工、發電、造紙、冶金、航空、制藥、水處理等行業和領域中,廣受用戶好評。
Q641F氣動球閥規格型號標準:
1、設計與制造:GB12237-89、API608、API 6D、JPI 7S-48、BS5351、DIN3357。
2、法蘭尺寸:JB/T74~90(JB74~90)、GB9112~9131、HGJ44~76、SH3406、ANSI B16.5、JIS B2212~2214、NF E29-211、DIN2543。
3、結構長度:GB12221-89、ANSI B16.10、JIS B2002、NF E29-305、DIN3202。
4、檢驗主試驗:JB/T 9092、API 598。

|
公稱通徑mm
|
DN15-DN300
|
||||||
|
材料代號
|
C
|
P
|
R
|
||||
|
主要
零件 |
閥體
|
WCB
|
ZG1Cr18
Ni9Ti |
ZG1Cr18Ni
12Mo2Ti |
|||
|
球體
|
2Cr13
|
1Cr18Ni9Ti
|
1Cr18Ni12MoTi
|
||||
|
閥桿
|
2Cr13
|
1Cr18Ni9Ti
|
1Cr18Ni12MoTi
|
||||
|
密封圈
|
增強聚四氟乙烯 對位聚苯 金屬密封
|
||||||
|
填料
|
聚四氟乙烯 柔性石墨
|
||||||
|
適用
工況 |
適用
介質 |
蒸汽、
水、油品 |
硝酸類
|
醋酸類
|
|||
|
適用
溫度 |
-28℃ - 300℃
|
||||||
|
執行器
|
型號
|
DA/SR系列、GTD/GTE系列、QGSY系列等
|
|||||
|
氣源
壓力 |
0.4-1.2MPa
|
||||||
Q641F氣動法蘭球閥的特點:
1、Q641F流體阻力小、球閥是所有閥類中流體阻力最小的一種,即使是縮徑球閥,其流體阻力也相當小;
2、止推軸承減小閥桿磨擦力矩,可使閥桿長期操作平穩靈活;
3、閥座密封性能好,采用聚四氟乙烯等彈性材料制成的密封圈,結構易于密封,而且球閥的閥封能力隨著介質壓力的增高而增大;
4、Q641F閥桿密封可靠,由于閥桿只作彷轉動運而不做升降運動,閥桿的填料密封不易破壞,且密封能力隨著介質的壓力增高而增大;
5、由于聚四氟乙烯等材料具有良好的自潤滑性,與球體的磨擦損失小,故球閥的使用壽命長;
6、Q641F下裝式閥桿和閥桿頭部凸階防止閥桿噴出,如火災造成閥桿密封破壞,凸階與閥體間還可形成金屬接觸,確保閥桿密封;
7、 防靜電功能:在球體、閥桿、閥體之間設置彈簧,能將開關過程產生的靜電導出。

Q641F氣動球閥功能選項:
1、限位開關:ALPS、ALS系列限位開關閥門回訊器
2、電磁換向閥:單電控電磁換向閥 、雙電控電磁換向閥、防爆電磁換向閥、二位三位五通電磁換向閥
3、調節型定位器:電氣定位器、氣動定位器、電氣轉換器。
4、氣源處理:空氣過濾減壓閥、氣源處理三聯件。
5、手動機構:上海川耐手操機構
Q641F氣動球閥尺寸規格標準:
|
公稱通徑
DN(mm) |
尺 寸(mm)
|
||||||||||||||
|
1.6MPa
|
2.5MPa
|
4.0MPa
|
|||||||||||||
|
L
|
D
|
D1
|
b
|
Z-фD
|
L
|
D
|
D1
|
b
|
Z-фD
|
L
|
D
|
D1
|
b
|
Z-фD
|
|
|
15
|
130
|
95
|
65
|
14
|
4-14
|
130
|
95
|
65
|
16
|
4-14
|
130
|
130
|
65
|
16
|
4-14
|
|
20
|
130
|
105
|
75
|
14
|
4-14
|
130
|
105
|
75
|
16
|
4-14
|
150
|
150
|
75
|
16
|
4-14
|
|
25
|
140
|
115
|
85
|
14
|
4-14
|
140
|
115
|
85
|
16
|
4-14
|
160
|
160
|
85
|
16
|
4-14
|
|
32
|
165
|
135
|
100
|
16
|
4-18
|
165
|
135
|
100
|
18
|
4-18
|
180
|
180
|
100
|
18
|
4-18
|
|
40
|
165
|
145
|
110
|
16
|
4-18
|
165
|
145
|
110
|
18
|
4-18
|
200
|
200
|
110
|
18
|
4-18
|
|
50
|
203
|
160
|
125
|
16
|
4-18
|
203
|
160
|
125
|
20
|
4-18
|
230
|
230
|
125
|
20
|
4-18
|
|
65
|
222
|
180
|
145
|
18
|
4-18
|
222
|
180
|
145
|
22
|
8-18
|
290
|
290
|
145
|
22
|
8-18
|
|
80
|
241
|
195
|
160
|
20
|
8-18
|
241
|
195
|
160
|
22
|
8-18
|
310
|
310
|
160
|
22
|
8-18
|
|
100
|
305
|
215
|
180
|
20
|
8-18
|
305
|
230
|
190
|
24
|
8-23
|
350
|
350
|
190
|
24
|
8-23
|
|
125
|
356
|
245
|
210
|
22
|
8-18
|
356
|
270
|
220
|
28
|
8-25
|
400
|
270
|
220
|
28
|
8-25
|
|
150
|
394
|
280
|
240
|
24
|
8-23
|
394
|
300
|
250
|
30
|
8-25
|
480
|
300
|
250
|
30
|
8-25
|
|
200
|
457
|
335
|
295
|
28
|
12-23
|
457
|
360
|
310
|
34
|
12-25
|
600
|
375
|
320
|
38
|
12-30
|
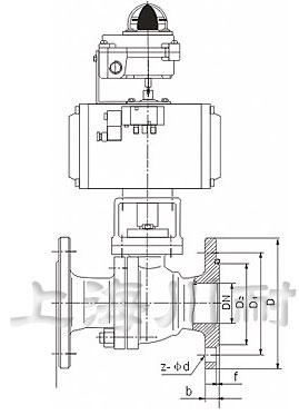
Q641F氣動球閥結構圖:

上一篇:氣動調節球閥 氣動調節球閥價格廠家
下一篇:最后一頁

